People Are Asking

Will Key Colony Beach's new Post Office in the Taj ma-City-Hall complex hold all the PO boxes from the original Post Office?

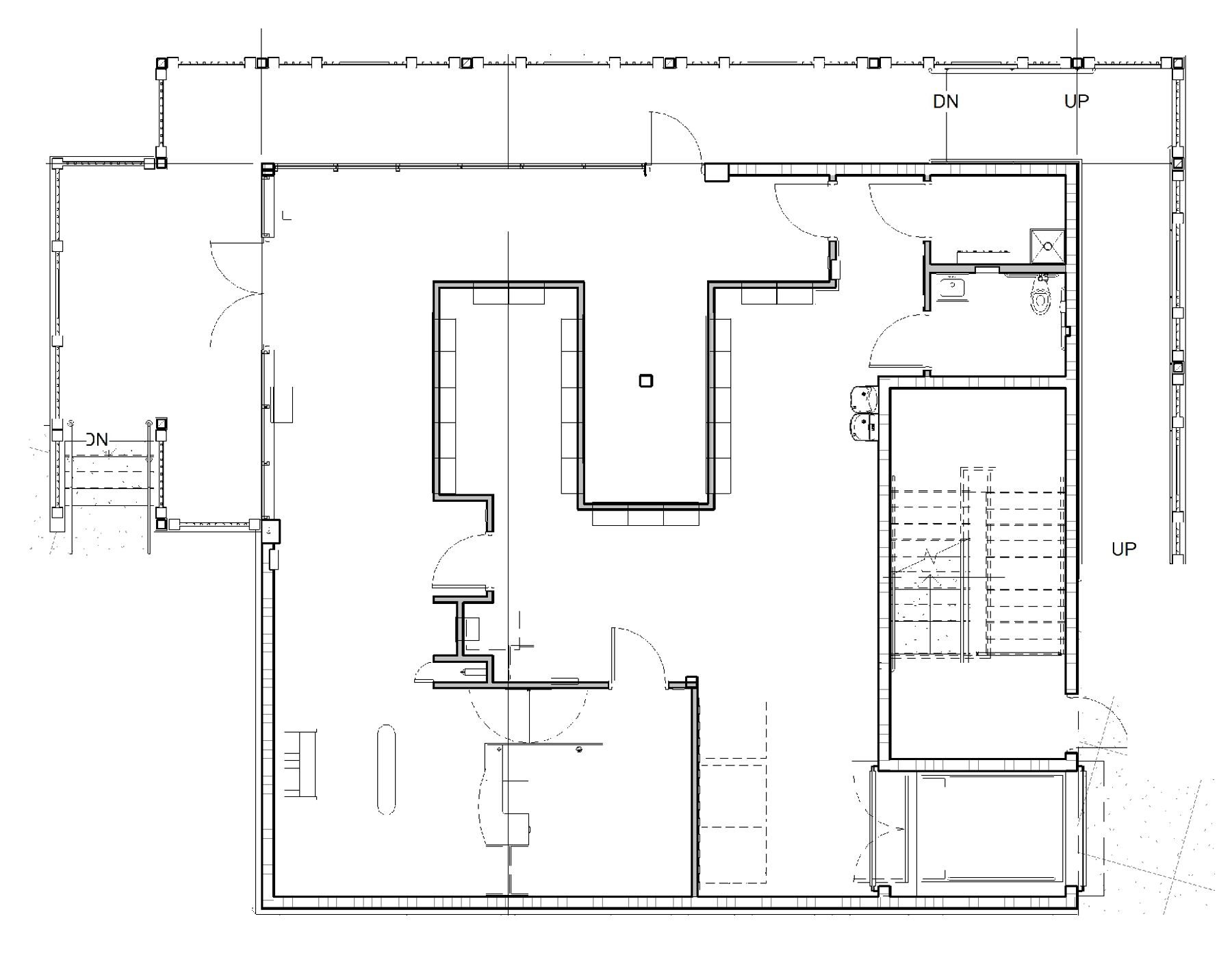
» Not according to the final plans.

» The current flooplan (above) shows five rack modules of E302 (1-5) Parcel Lockers plus seventeen modules of E301 (1-2, 3-7, 11-15, 16-17) PO boxes capable of holding an estimated 824 boxes of different sizes. (Each module is 24" wide.) The current Post Office had about twenty-eight modules with 1,580 boxes of different sizes but "there will be PLENTY for all residents" in the new space.
» This is just another example of how well this whole city Hall project has been planned. The "temporary" Post Office Trailer doesn't have enough room for all the boxes. The Taj ma-City-Hall won't have enough room for all the boxes, either.
» A city commissioner told the administrator that "KCB needs to fix this immediately."
"When you discuss with any resident have them contact do United States, Postal Service, directly and voice their concern," the adminstrator replied.

This is not the U.S. Postal Service's fault!

» I guess we're just SOL," one resident said.
» This letter looks at the "poor decision making and poor planning" and tells you exactly who is to blame, along with the city administrator's and the city clerk's responses.

1,580 before -- 824 in the Taj

.
» And so it goes.

Previous Question | HOME | Next Question