People Are Asking

KCB City Hall Committee

Goal

» Prepare 3-4 alternates so KCB citizens can choose the best City Hall design for the next 66 years.
(For reference, here's what City Hall looks like now.

Design Criteria

» Meet the City ordinance that the "architectural style and building materials" of new construction "are harmonious in character."
» Maintain Marble Hall.
» Meet or exceed AE-7 flood zone elevation requirements still in effect now.
» Meet the space requirements listed by employees, residents, and the police department.
» Meet the needs for secure records storage and on-site utilities.
» Maintain the exact footprint of the original building.
» Maintain a similar appearance to the original building with "stacked bond" CBS construction.
» Offer offices with windows for the current staff.
» Enlarge the P.D./EOCspace.
» Provide separate washroom and locker space for P.D.
» Create two flexible "conference room" spaces, combinable into one "commission room."
» Maintain the existing post office with improved interior layout.
» Keep Marble Hall and the post office open during construction.

Budget

» The estimated full construction cost of each current proposal.

The best of the current suggestions from residents *

Residents have already posted comments about some of the designs below. The committee can start with these proposals and work from there. Click through on each to see the designs as well as the comments.

» Proposal #2: An older City Hall idea...

» Proposal #3 A ground floor City Hall concept...

» Proposal #6: Here's the City Hall we "Coulda, Woulda, Shoulda," built in 2018. We still can, for less than the "low bid" for the LIVS-designed City Hall Complex...

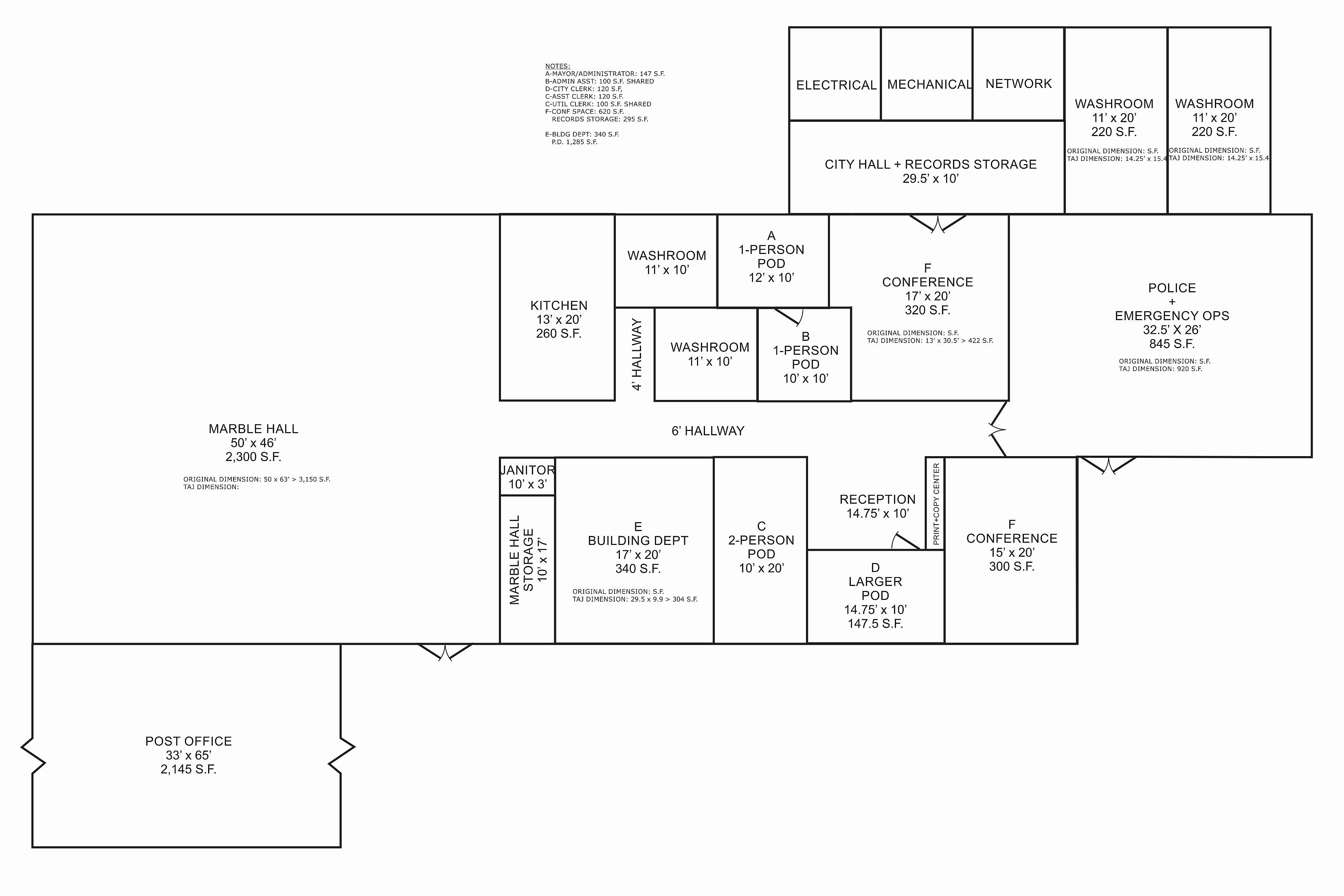
» Proposal #8: Here's a proposal that keeps Marble Hall and the Post Office and builds what we actually need. This also costs less than the "coulda shoulda woulda" proposal and for far less than the LIVS-designed City Hall Complex. And it looks pretty nice, too...

» Proposal #9: And, finally, here's how we can build a legal two story city hall "tower" entry and give visitors a safe and easy ground level entry to all sections of the building.


* All of the City Hall suggestions from residents

HOME