People Are Asking

What did the proposed (LIVS-Designed) Key Colony Beach City Hall Complex look like? How about the current City Hall?
Have there been other suggestions?
Did the City Commission even consider ideas from residents?

» Here is the 2022 iteration of "renderings" of the Taj ma-KCB, gun tower and all.

» Here's an earlier sketch of the proposed two-story Key Colony Beach City Hall.

» This is what the Key Colony Beach City Hall looks like now.

» Key Colony Beach in about 1961, when living aboard was encouraged...

» One City Hall concept from 2018 that the City Commission wouldn't even look at:

» Another City Hall idea the City Commission wouldn't even look at:

» A ground floor concept the City Commission wouldn't even look at:

» Another ground floor concept the City Commission hasn't considered:

» Here's the City Hall we "Coulda, Woulda, Shoulda," built in 2018. We still can, for less than the "low bid" for the Taj ma-KCB.:

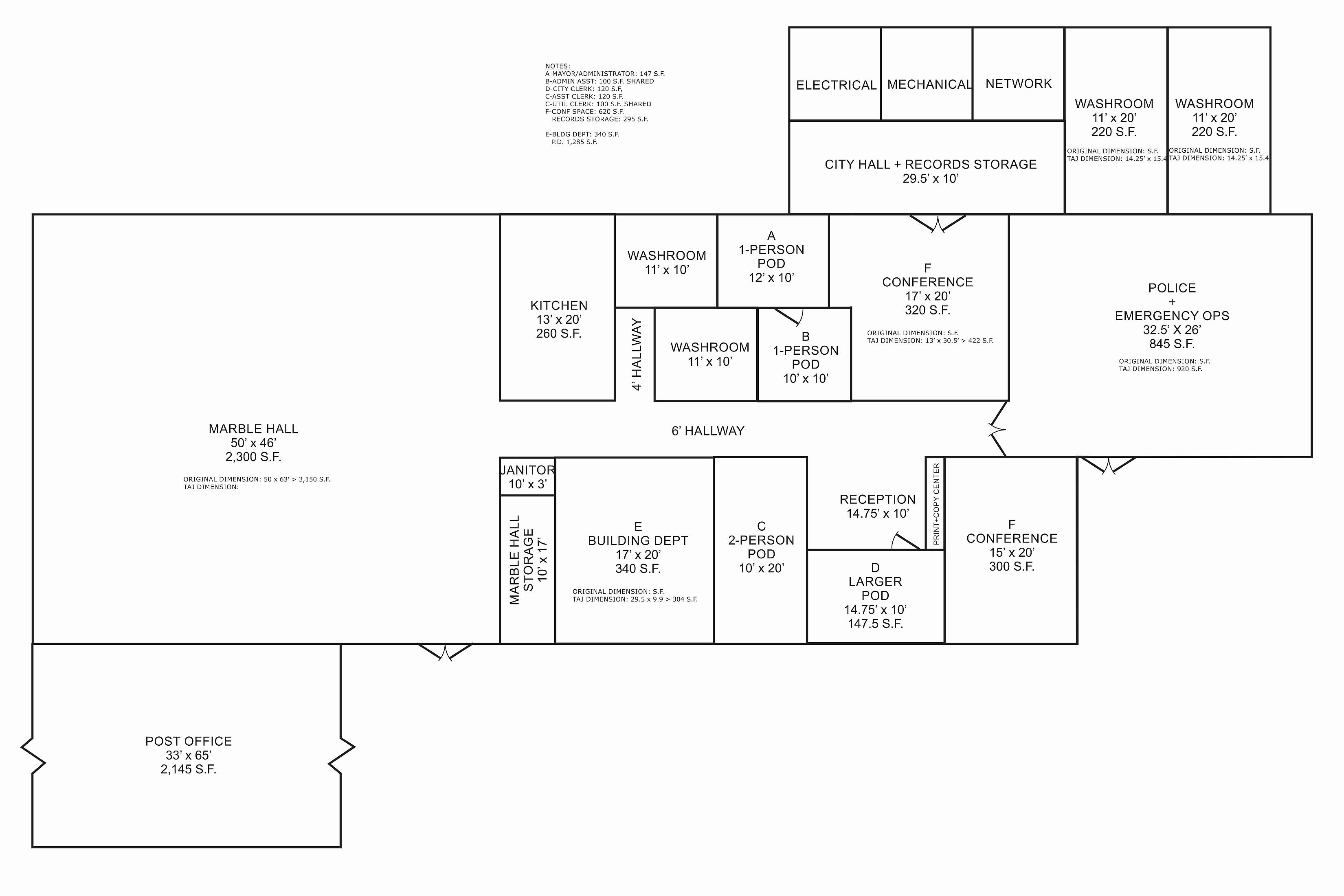
» This proposal keeps the best of our City Hall and builds what we actually need. We can do that for less than the "coulda shoulda woulda" proposal and for far less than the Taj ma-KCB. And it looks pretty nice, too:

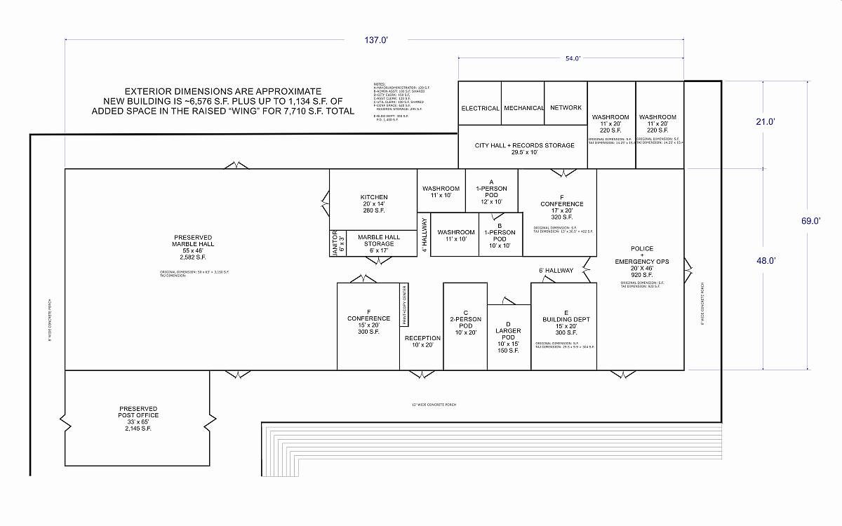
» This proposal that keeps Marble Hall and the Post Office and also builds what we actually need. This costs more than the one above but still less than the "coulda shoulda woulda" proposal and for far less than the Taj ma-KCBas well:
» And, finally, here's how we can build a legal two story city hall "tower" entry and give visitors a safe and easy ground level entry to all sections of the building.

Previous Question | HOME | Next Question