People Are Asking

The Best of Both Worlds

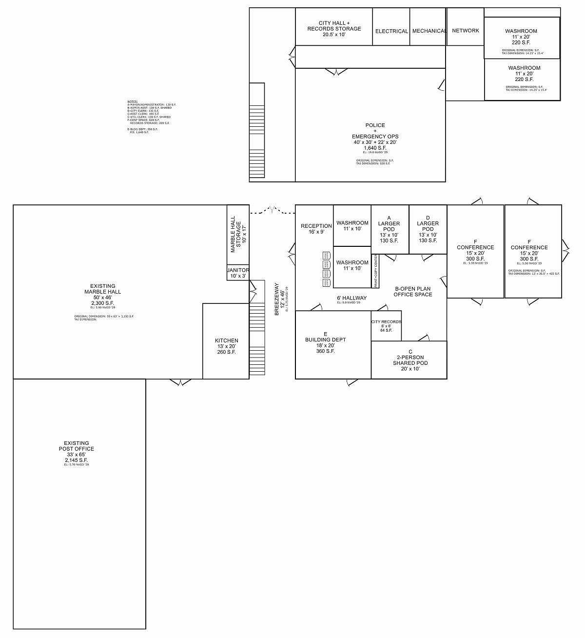
This proposal shows what city hall could look like from the parking lot, the same view most of us see going into the post office we used before it got taken away from us. There is a floorplan showing all the necessary interior spaces. It meets the current, legal flood zone requirements.

The design meets all the design criteria and is "harmonious." That's the good news.

This proposal keeps Marble Hall, the post office, and the Building Department wing. It knocks down the center section and builds a two-story connecting building between the "new" (and now repurposed) building department tower and Marble Hall. The floorplan shows space usage, has room for expansion, puts the police department and city records upstairs, and generally has everything but an elevator. And the city hall park remains untouched. We could hope they'll repave the parking lot, though.


If the voters want to do more than repair the existing building, this is a decent alternative. It looks the part and fits all the staff. It can be built for a realistic $5.8 million. That's actually a little less that the anticipated cost to repair and upgrade the existing City Hall.

Couda, shoulda, woulda. If the city commission had done this in 2018 instead of going for gun towers and the shopping mall, it would have cost just $2.5 million and we would still have all the $1.5 million they've spent engineering a fraud and renting trailers that we could use for the overruns and even some fluff. That's the worse news, although as we noted in "coulda shoulda woulda" it pretty much seals their political fate.


Here are the design criteria:

• Meet the City requirement that the "architectural style and building materials" of new construction "are harmonious in character."
• Maintain Marble Hall.
• Meet or exceed AE-7 flood zone elevation requirements still in effect now.
• Meet the space requirements listed by employees, residents, and the police department.
• Meet the needs for secure records storage and on-site utilities.
• Maintain the exact footprint of the original building.
• Maintain a similar appearance to the original building with "stacked bond" CBS construction.
• Offer offices with windows for the current staff.
• Enlarge the P.D./EOCspace.
• Provide separate wasroom and locker space for P.D.
• Create two flexible "conference room" spaces, combinable into one "commission room."
• Maintain the existing post office.

Worth noting is the simple fact that six years of delay have nearly doubled construction costs.

In today's inflated economy, this project is now likely to cost around $6.7 million. (That's still as much as $13 million "cheaper" than the building the City put out for bids.) The right answer is to develop new plans and request legitimate bids for each alternative.

| HOME |