People Are Asking

What will the $14 million Key Colony Beach City Hall look like, part II?


Another, earlier view of the gun tower.


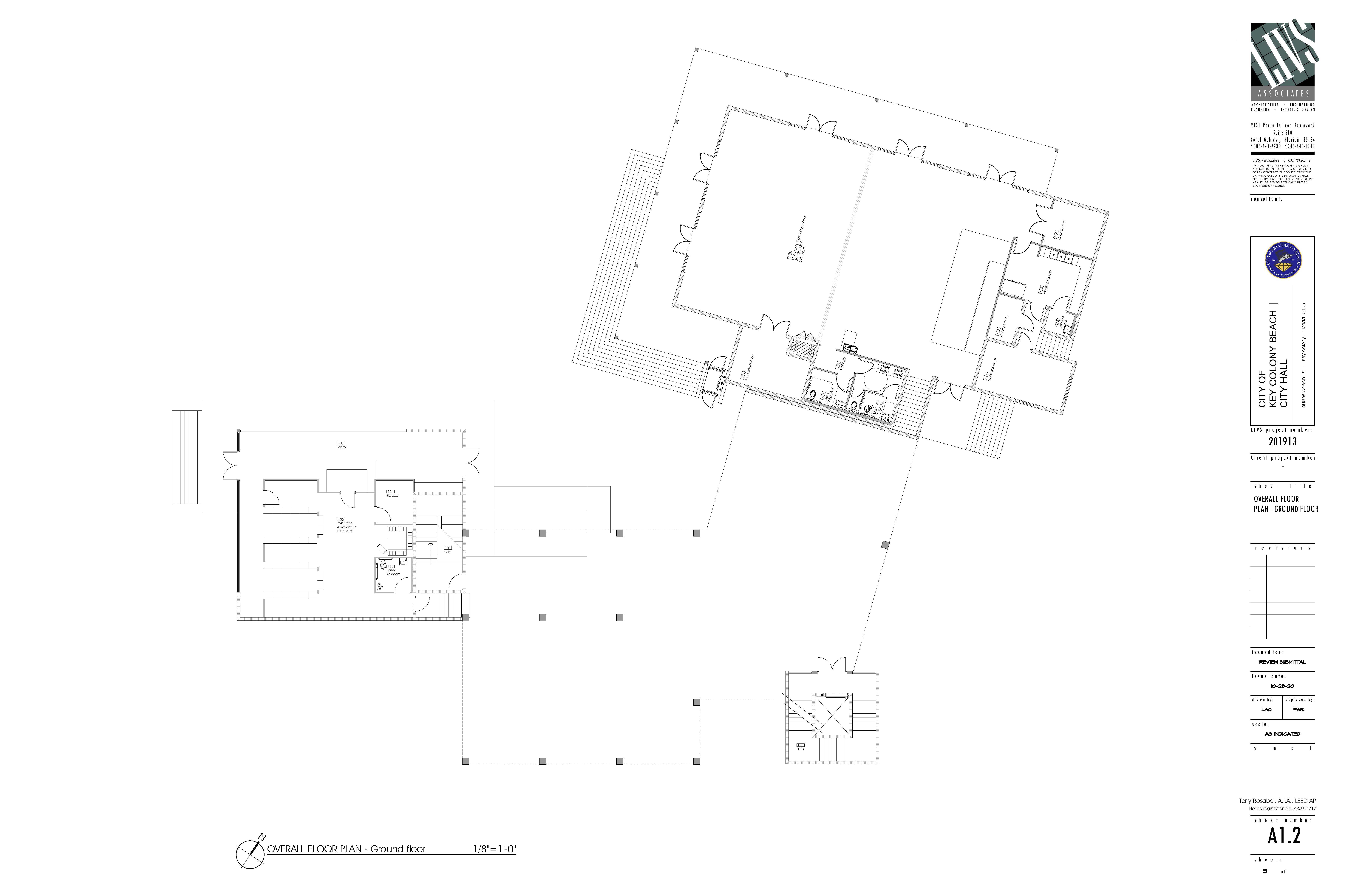
First floor post office on the left, auditorium above and to the right... Click to enlarge.


Second floor offices ... Click to enlarge.

Pretty nice looking office space for Miami Beach (population 82,890). Maybe a little much for Key Colony Beach (population 758).
IMPORTANT UPDATE: THESE FLOOR PLANS FROM THE CITY HALL WEBSITE DO NOT MATCH THE THE BID PACKAGE FLOOR PLANS
The complete bid package, with an explanation, is available here.

Click here for the exterior renderings.

| HOME |